技术参数:旋臂吊 BZ型定柱式旋臂起重机

日期:02-21  点击:3805  属于:工作原理

技术参数:旋臂吊

BZ型定柱式旋臂起重机
BZ Modol Column cantilever Crane

简述:

BZ型定柱式旋臂起重机是近年来发展起来的中小型吊运设备。其结构独特、安全
可靠,具有高效、节能、省时、省力、灵活的特点。且能在三维空间内随意操作,特
别是在短距,密集性吊运的场合更能显示出比其它常规性吊运设备独有的优越性。广
泛应用于车间,仓库、码头等固定场所。

环境条件:

1.起重机的电源为三相交流,额定频率为50HZ,额定电压为380V.
2、起重机安装地点的海拔高度不超过2000m。
3、起重机工作环境中不得有易燃、易爆及腐蚀性气体。
4.起重机不允许吊运熔融金属,有毒物品和易燃易爆物品。

订货须知:

用户在定货或签订合同时,必须将本机的基本参数(额定起重量、起升高度、有效
半径等)描述清楚,以便提供满足工况要求和工作条件的产品。

A Brief Introduction:

Cantilever crane is a small and medium-speed lifting equipment developed recently.It has
characteristics of unique structure,safe and reliable operation,high efficiency,energy-
saving,time-saving,effort-saving,and flexibility.It can be operated under three dimensional
environment. It issuperior in the cases of short distance, concentrated lifting. It is widely
used at various sites for various trades.

Environment:

1. power source is three-phase alternating current, rated frequency is 50HZ, rated
Voltage is 380V.
2. The altitude height of site is ought to be less than 2000m
3. Flammable, explosive and corrosive gas are forbidden in the work environment.
4. The crane is forbidden to lift fuse and blend deleterious article and flammable explosive
article.

Ordering Notice:

Ordering or signing the contract, customers must offer the basic parameters(such as
rated lifting weight. lifting height valid radius and so on)so that supply the products that
fulfil the requirement of work.

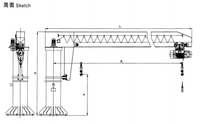
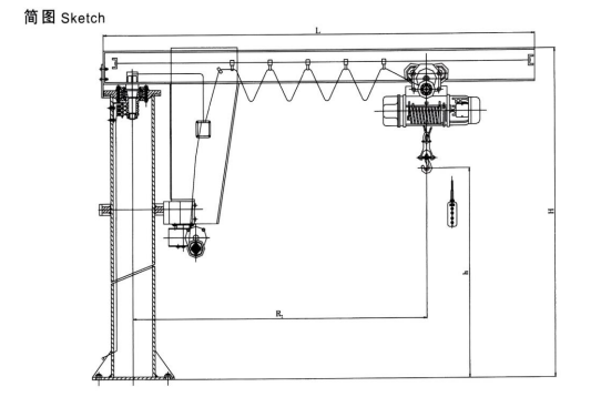
悬臂吊外形尺寸


悬臂吊外形尺寸图
悬臂吊技术参数数据
关于我们
扫一扫,关注我们最新消息扫一扫,关注我们最新消息
联系我们
0523-85176176

工作时间:周一至周五 9:00-18:00

联系人:刘经理

手机:13852625287

邮件:jjlongma@163.com

地址:靖江市城南工业园区

底部导航
某某电子有限公司成立于2000年,注册资金1000万,员工40余人,是一家专业做电子电气的公司。优秀的员工,先进的技术,精良的设备,严格的管理是公司得以不断发展养大、产品能够赢得用户依靠的根本所在